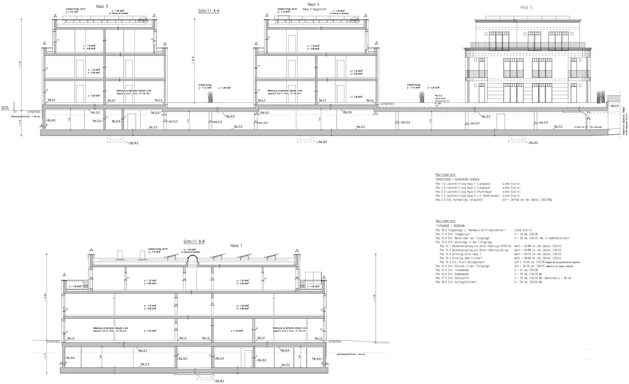
Neubau „Heimathafen“ Boltenhagen: 44 Wohneinheiten und 2 Gewerbeeinheiten in 5 Gebäuden mit Tiefgarage unter dem gesamten Komplex
Bauort: Ostseeallee Boltenhagen
Konstruktion: Massivgebäude mit WU-Dachflächen und großer WU-Tiefgarage
Tätigkeit: Tragwerksplanung mit konstruktivem Brandschutz samt Ausführungsplanung (Schal- und Bewehrungspläne), Schallschutznachweise


